Private Office Natureck

Abschließbares Büro mit Blick ins Grüne

Im Grünen (Co)Wirken
Jetzt anfragen

Arbeiten im Grünen – mitten in Schorndorf

Willkommen in eurem neuen Private Office „Natureck“ – eurem Rückzugsort zum Fokussieren, mitten im Grünen.

In dem hellen Eckbüro im Erdgeschoss der Villa am Schloss arbeitet ihr ungestört, profitiert von unserer professionellen Infrastruktur und seid zugleich Teil einer wachsenden Community. Das Natureck bietet euch Raum zum Fokussieren, für Ideen und Austausch, zum Wirken und Wachsen.

Das abschließbare Office ist perfekt für kleine Unternehmen, Start-ups oder Projektteams, die eine moderne und repräsentative Arbeitsumgebung suchen.

Eure Vorteile

  • Hell, ruhig und rund um die Uhr (24/7) nutzbar
  • All-inclusive-Service: WLAN, Kaffee, Tee, Wasser, Obst, Drucker (fair use), Strom, Reinigung & Winterdienst
  • Repräsentative Geschäftsadresse für euer Unternehmen
  • Arbeiten mit Gartenblick – Terrasse und Grünbereich direkt vor der Tür
  • Zugang zur gemeinschaftlichen Nutzung des Besprechungsraums Lobby 
  • Zentral gelegen: In nur fünf Gehminuten seid ihr mitten in der Schorndorfer Innenstadt

Personenanzahl

Geeignet für etwa 3 Personen

Sonstiges

  • Rund um die Uhr flexibel nutzbar – 24/7, Montag bis Sonntag
  • 10 Stunden Nutzung unseres Besprechungsraums Lobby pro Monat inklusive
  • 10 % Preisvorteil auf Veranstaltungen und Raumbuchungen in unserem Coworking Space
  • Mindestlaufzeit: 6 Monate

Services (optional hinzubuchbar)

  • Digitales Whiteboard – ideal für Team-Meetings, Präsentationen oder kreative Sessions
  • Flipchart, Pinnwand oder klassisches Whiteboard – flexibel einsetzbar für Workshops und Brainstormings
  • Moderatorenkoffer – für professionelle Besprechungen
  • 24 Zoll Monitor

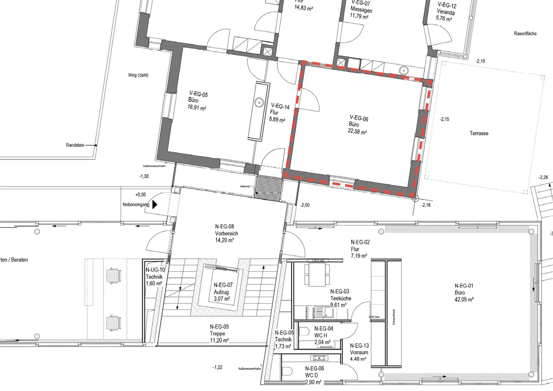
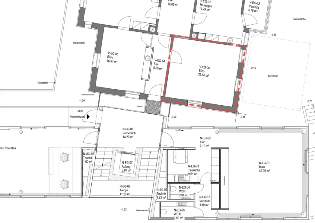
Maße und Grundriss

  • Größe: 22,58 m²
  • Etage: EG (Villa)

Ausstattung

  • Abschließbares Büro mit zusätzlichem Stauraum in abschließbaren Sideboards
  • Geschäftsadresse auf Wunsch nutzbar
  • Zuverlässiges WLAN
  • Großer Schreibtisch und ergonomische Stühle
  • Drucker und Scanner im Open Space zur gemeinschaftlichen Nutzung (fair use)
  • Besprechungsraum Lobby mit großem Nussbaumtisch und bequemen Stühlen
  • Voll ausgestattete Küche mit Kaffeemaschine, Mikrowelle, Spülmaschine und frischem, gefiltertem Wasser (Sprudel oder still)
  • Inklusive Nebenkosten: Strom, Heizung und Hausmeister-Service
  • Gemeinschaftliche Terrasse und Gartenlounge – für Pausen in grüner Atmosphäre

Kosten

Wenn ihr das Büro nur für einen kurzen Zeitraum nutzen möchtet, könnt ihr euch ganz flexibel mit unserem Tagesticket „Focus“  (49 EUR / Tag zzgl. MwSt., abhängig von der Verfügbarkeit) einbuchen – oder einfach direkt auf uns zukommen.

Gemeinsam finden wir eine Lösung, die am besten zu euch passt.

Nicht das richtige Office für euch? Schaut euch die weiteren Private Offices aus unserem Angebot an:

Netzwerk | Ideenschmiede | Austausch | Schlossblick

Weitere Preise findet ihr auf unserer Tarifeseite oder auf Anfrage über unser Kontaktformular.