Private Office Schlossblick

Exklusiv arbeiten mit Aussicht auf das Stadtschloss Schorndorf

Ruhig & stilvoll arbeiten - mitten in Schorndorf City
Jetzt anfragen

Euer abschließbares Büro mit Schlossblick

Hier könnt ihr arbeiten, wie es euch passt: Mitten in Schorndorf, direkt gegenüber dem Stadtschloss und neben der Villa am Schloss, liegt euer neuer Arbeitsplatz. 

Das helle Private Office „Schlossblick“ ist perfekt für alle, die Raum für Rückzug und Fokus suchen, aber in einem repräsentativen Umfeld arbeiten möchten. Statt in anonymen Bürohäusern findet ihr hier eine helle, moderne Arbeitsumgebung mit einer inspirierenden Community, möbliert mit höhenverstellbaren Schreibtischen und ergonomischen Stühlen sowie ein abschließbares Sideboard für wichtige Dokumente. 

Eure Vorteile

  • Euer eigenes abschließbares Büro (flexibel 24/7 nutzbar)
  • Service all inclusive: WLAN, Kaffee, Wasser, Tee, Obst, Drucker (fair-use), Strom, Reinigung und Winterdienst
  • Repräsentative Geschäftsadresse für euer Unternehmen
  • Arbeiten mitten im Grünen – und in 5 Gehminuten direkt in der City 
  • Zugang zu unserem Besprechungsraum Lobby
  • Zugang zu Terrasse + Lounge 

Personenanzahl

Bis zu 4 Personen (je nach Schreibtischgröße und -aufstellung)

Sonstiges

  • Montag bis Sonntag unbegrenzter Zugang (24/7)
  • 10 Std. kostenfreie Besprechungsraum-Buchungen / Monat
  • 10 % Rabatt auf Veranstaltungen
  • Mindestlaufzeit: 6 Monate

Services (optional hinzubuchbar)

  • Digitales Whiteboard für interaktive Meetings
  • Flipchart, klassische Pinnwand oder Whiteboard für Workshops und Präsentationen
  • Moderatorenkoffer mit professioneller Ausstattung
  • Externer 24-Zoll-Monitor

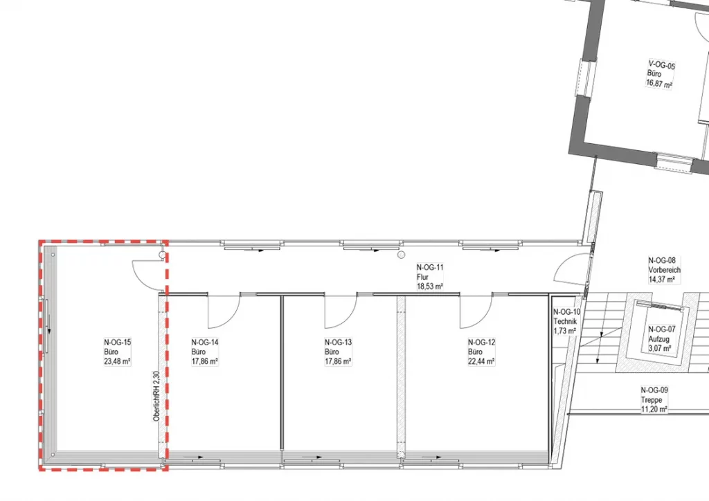
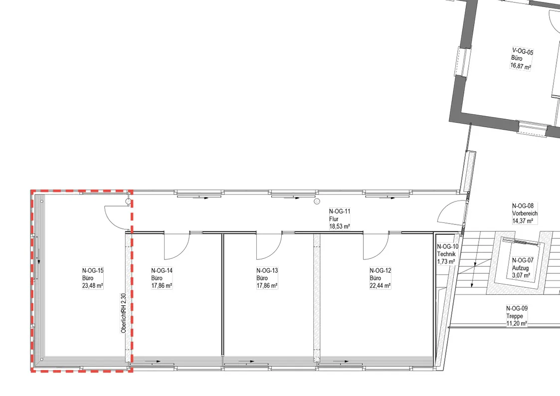
Maße und Grundriss

  • Größe: 23,48 m²
  • Etage: 1. OG

Ausstattung

  • Abschließbares Privatbüro
  • abschließbares Sideboard 
  • Geschäftsadresse (bei Bedarf)
  • stabiles WLAN
  • Höhenverstellbare Schreibtische und ergonomische Stühle
  • Drucker, Scanner (fair-use) im Open Space
  • Großer Nussbaumtisch mit bequemen Stühlen in der Lobby (Besprechungsraum 10 Std. / mtl.)
  • Küche mit Kaffeemaschine, Mikrowelle, Spülmaschine, Wasserfilteranlage
  • Strom, Heizung, Hausmeister-Service
  • Terrasse + Garten Lounge (gemeinschaftliche Nutzung)

Kosten

Falls ihr das Büro nur kurzfristig benötigt, bucht euch gerne über das Tagesticket „Focus“ bei uns ein (für 49 EUR pro Tag, zzgl. MwSt. / je nach Auslastung) – oder sprecht uns an. Gemeinsam finden wir den perfekten Weg.

Nicht das richtige Office für euch? Dann werft einen Blick auf die anderen Private Offices in unserem Portfolio:

Natureck | Netzwerk | Ideenschmiede | Austausch

Weitere Preise findet ihr auf unserer Tarifeseite oder auf Anfrage über unser Kontaktformular.